Pilotní projekt zařízení 4AUT
Projekt v Březnici je prvním konkrétním krokem k realizaci myšlenky menších, regionálních zařízení pro dospělé osoby s poruchou autistického spektra.
Slouží jako ověření konceptu v praxi a zároveň jako vzor pro další podobné projekty v jiných regionech.
Kapacita zařízení je záměrně nastavena menší a přehledná: přibližně 8–10 stálých klientů v režimu celotýdenního pobytu, další místa slouží jako odlehčovací služba. Služba je určena pro dospělé osoby (18+) s poruchou autistického spektra, klienty, kteří potřebují strukturované a klidné prostředí, osoby, u kterých není nutná rozsáhlá fyzická asistence.
Dispozice Březnice
Projekt je navržen jako dvoupodlažní objekt, který jasně odděluje společenský a aktivní provoz od klidové a pobytové části. Toto rozdělení podporuje přehlednost, klid a lepší orientaci klientů v prostoru.
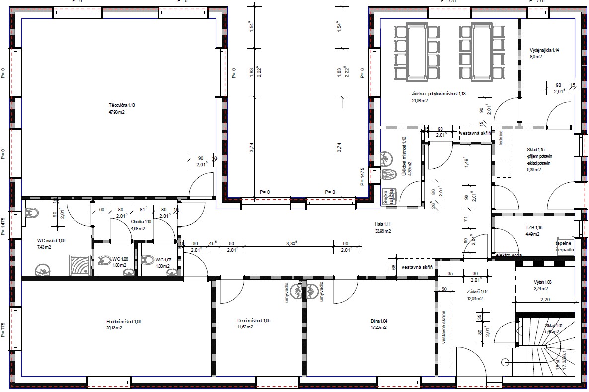
Přízemí je koncipováno jako živé centrum domu, kde probíhá většina denních aktivit, setkávání a společného času). Hala a chodby navržené přehledně, bez zbytečných zákoutí, jídelna s pobytovou místností, slouží ke společnému stravování, odpočinku i třeba výtvarným dílničkám. Tělocvična poskytuje prostor pro pohybové aktivity a uvolnění, hudební místnost je vhodná pro muzikoterapii a klidnější aktivity, dílna pro pracovní a rukodělné činnosti a denní místnost určená pro menší skupiny nebo individuální práci,či setkávání s blízkými.
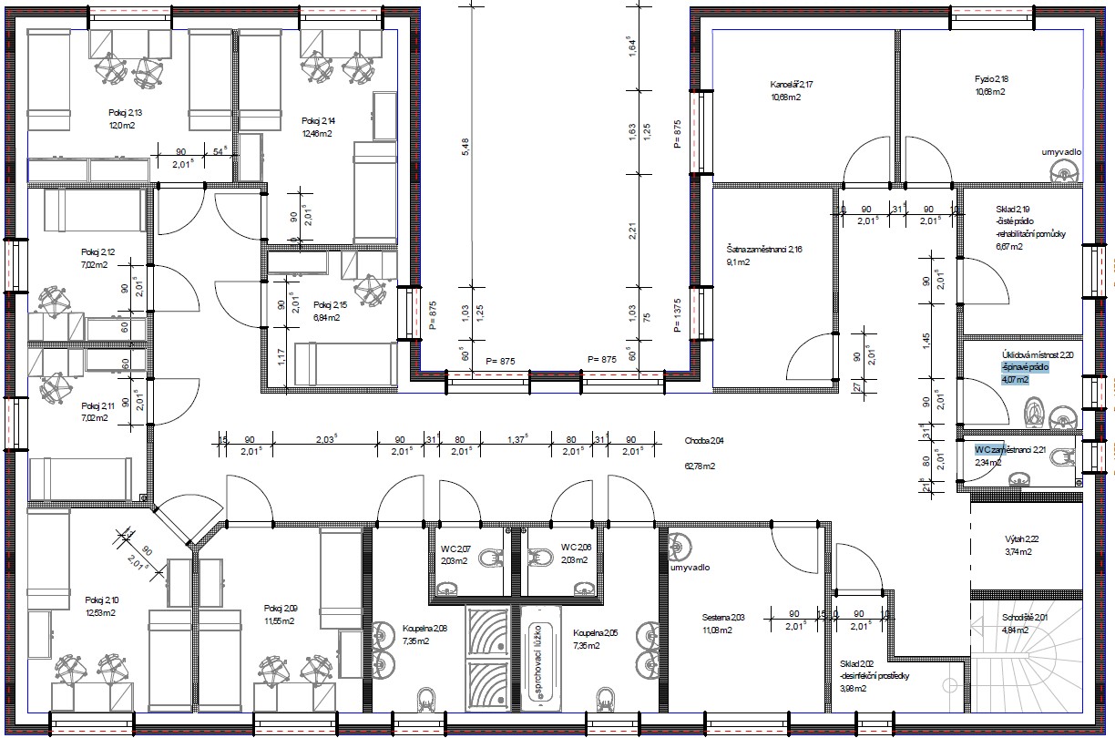
Druhé nadzemní podlaží je navrženo jako klidová zóna domu, určená především k bydlení, odpočinku a regeneraci.
Jednolůžkové a dvoulůžkové pokoje klientů jsou navržené v přehledném uspořádání a navazují na centrální chodbu, která je široká, přímá a dobře orientovatelná. Koupelny a WC, dostupné z pobytové části a sesterna umožňuje zajištění dohledu a rychlou dostupnost personálu.
Rozmístění pokojů a společných prvků v patře umožňuje zachovat soukromí klientů, minimalizovat rušivé podněty, zajistit bezpečný a přehledný provoz i v denních i nočních hodinách.
další projekty
Každý další projekt 4AUT vždy přizpůsobíme konkrétním podmínkám místa.
Vycházíme z požadavků budoucích klientů a jejich rodin, z možností daného regionu, platného územního plánu a dalších legislativních a provozních omezení. Koncept 4AUT není pevně daný typový dům, ale flexibilní řešení, které lze upravit dispozičně, kapacitně i provozně tak, aby přirozeně zapadlo do daného prostředí a fungovalo dlouhodobě.






